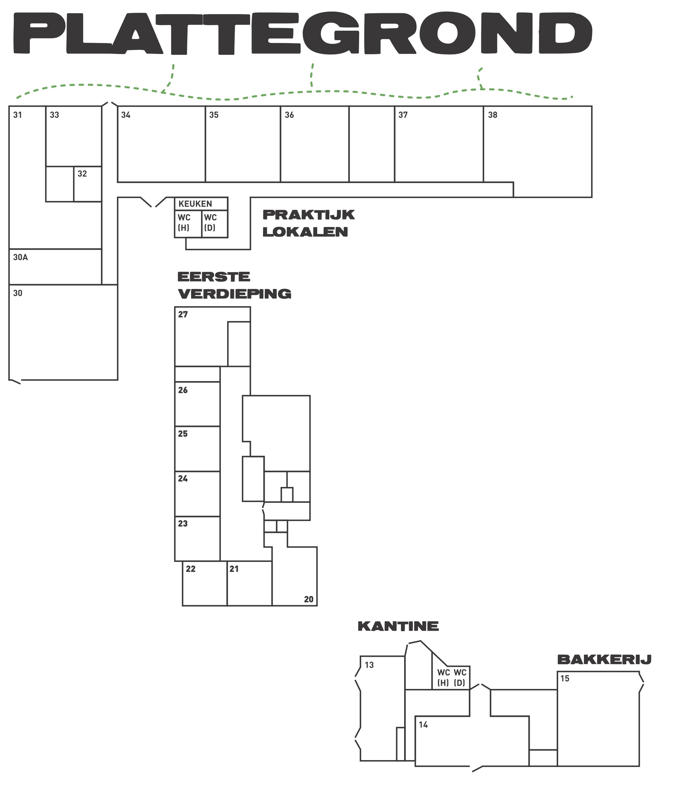
Plattegrond
Van praktijk lokalen naar lichtelijk alternatieve broedplaats
Welkom in LAB Wijnhof โ een voormalige school waar creativiteit nu de lesstof is. Via de interactieve plattegrond kan je doorklikken naar elk lokaal van het de broedplaats. Klik op een ruimte om meer te ontdekken over de makers die er werken, de projecten die er ontstaan of de mogelijkheden om zelf iets te organiseren.
Een gebouw met verhalen
Ooit leerden leerlingen hier de fijne kneepjes van CKV, metselen en elektrotechniek. Die praktijkzin leeft voort in de huidige invulling: van maken tot dansen, van filmproductie tot installatiekunst โ het gebouw bruist van de handen-uit-de-mouwen mentaliteit. De lokalen zijn robuust, karaktervol en creatief heringericht door hun nieuwe bewoners.
